Un tiers-lieu pour améliorer la qualité de vie universitaire
Cet ancien espace de stockage de près de 1 400 m2 deviendra dès l’année 2025-2026 un lieu de vie inédit et innovant offrant à la communauté universitaire, étudiants comme personnels, un lieu de rencontres, de restauration et de repos.
- Un projet au long cours
-
S'appuyant sur les réflexions menées dès 2019 lors de la mission de co-design autour de la ? Manufacture des Possibles ?, le projet de tiers-lieu solidaire s'inscrit, depuis 2022, dans un long travail de réflexion et de co-construction : appel à participation, sondages auprès de la communauté, animation d'ateliers de travail, etc.
Ce grand projet immobilier de l'Université Jean Moulin est coordonné par la Direction de l’Immobilier et de la Logistique (DIL), en particulier Marie Guillaume, directrice de la DIL et Guy Olagnon, responsable de la cellule d’opérations immobilières, en lien avec différents services de l'université et le comité des usagers composé d’étudiants et personnels de l’Université.
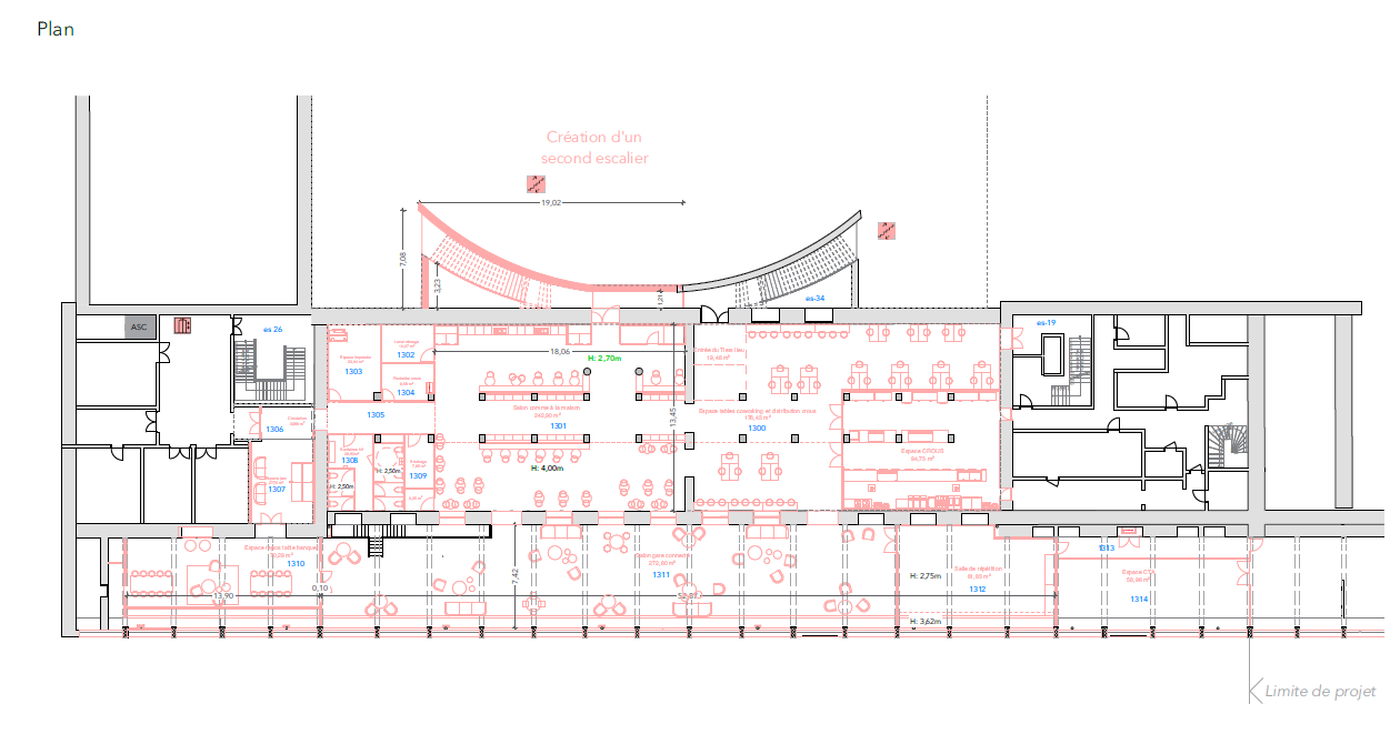
? Les étapes du projet et les parties prenantes - Le projet d'aménagement du tiers-lieu
-
Le tiers-lieu a été pensé pour répondre à différents besoins et fonctions identifiés lors des ateliers de travail et des sondages, avec un regroupement autour de 6 grands thèmes :
Manger / ?changer et se rencontrer / Travailler / Se reposer / Créer / Se divertir.
Dans un esprit industriel, le projet de tiers-lieu prévoit l'aménagement des espaces permettant de répondre à ces différents besoins :
- Espace multi-fonctions avec zone de restauration (CROUS) et espace de co-working aux autres moments de la journée
- Salon "comme à la maison"
- Zone "jeux / détente"
- Espace réunion
- Zone "salon gare connectée"
- Salle de répétition - activités culturelles
Plan du futur tiers-lieu
- Lancement du chantier en janvier 2025
-
Le projet rentre, à partir du mois de janvier 2025, dans la phase concrète et opérationnelle des travaux avec un calendrier phasé, pensé pour réduire au maximum les nuisances en journée sur le 澳门银河的网站多少.
Les travaux sont prévus jusqu'à l'été 2025.
? Calendrier prévisionnel des travaux
Contact
Guy OLAGNON
